SAC Examples

Documents on this page may not be ADA accessible.
If you need assistance accessing materials, please email [email protected]

This page contains links to examples of floor plans, demolition plans, site plans, and forms. These are only examples; the plans and forms you submit will differ and may not all be applicable to you.

If you have questions about these examples, please contact the SAC team at [email protected].

Brewery Floor Plan Example (87 KB, PNG image)
Please be sure to label all areas/rooms and include all wall measurements or a scalable plan.

Clinic Floor Plan Example (213 KB, PNG image)
Please include the plumbing fixture layout for clinics. Please be sure to include all wall measurements or a scalable plan and label all rooms.

Office Floor Plan Example (89 KB, PNG image)
Please be sure to label all areas/rooms and include all wall measurements or a scalable plan.

Office/Warehouse Floor Plan Example (203 KB, PNG image)
Please be sure to label all areas/rooms and include all wall measurements or a scalable plan.

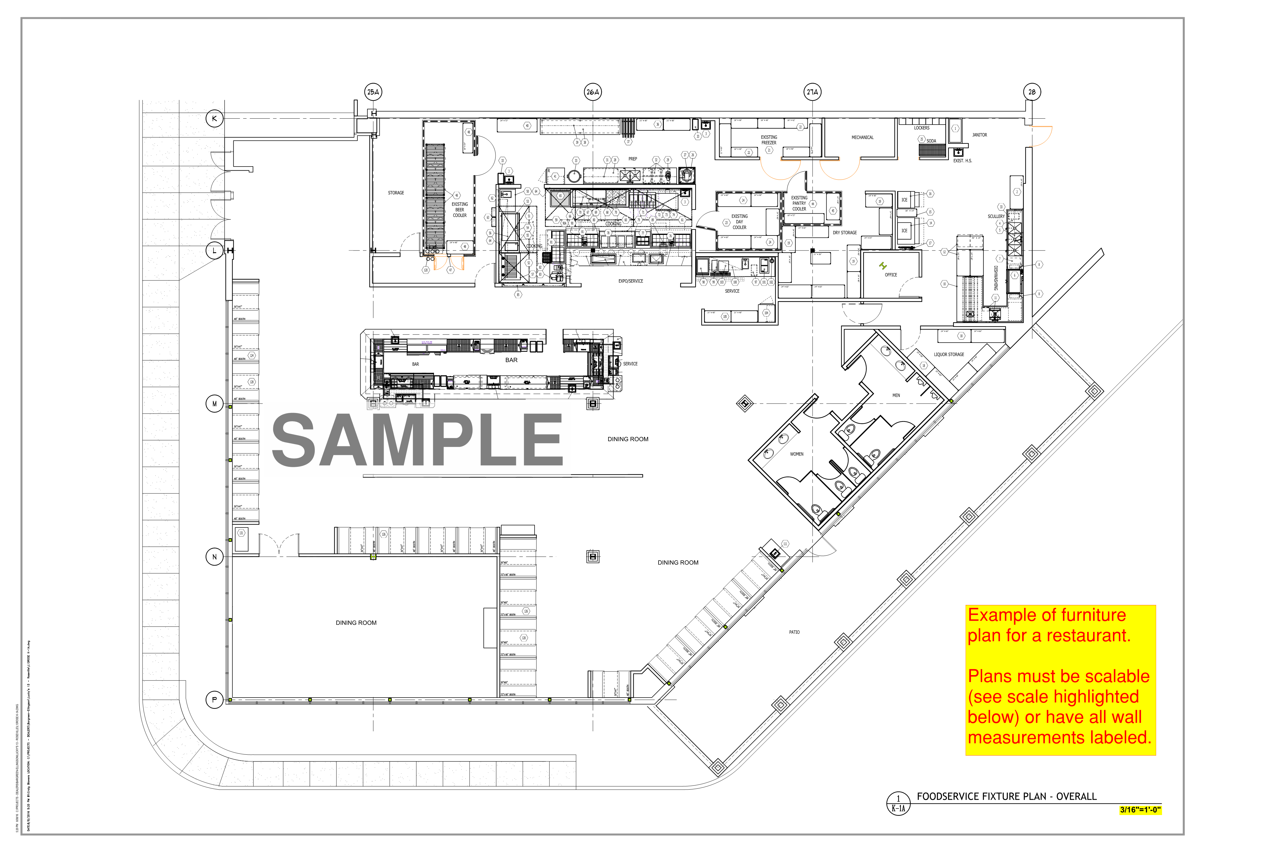
Restaurant Floor Plan Example 1 (750 KB, PNG image)
Please be sure to label all areas/rooms and include all wall measurements or a scalable plan.

Restaurant Floor Plan Example 2 - All wall measurements labeled (201 KB, PNG image)
Please be sure to label all areas/rooms and include all wall measurements or a scalable plan.

Salon Floor Plan Example 1 (70 KB, PNG image)
Please include the area for manicure, pedicure, facial, massage, or hair washing stations (if applicable). Plans may be hand drawn as long as they have all wall measurements and rooms labeled.

Salon Floor Plan Example 2 (87 KB, PNG image)
Please include the area for manicure, pedicure, facial, massage, or hair washing stations (if applicable). Plans may be hand drawn as long as they have all wall measurements and rooms labeled.

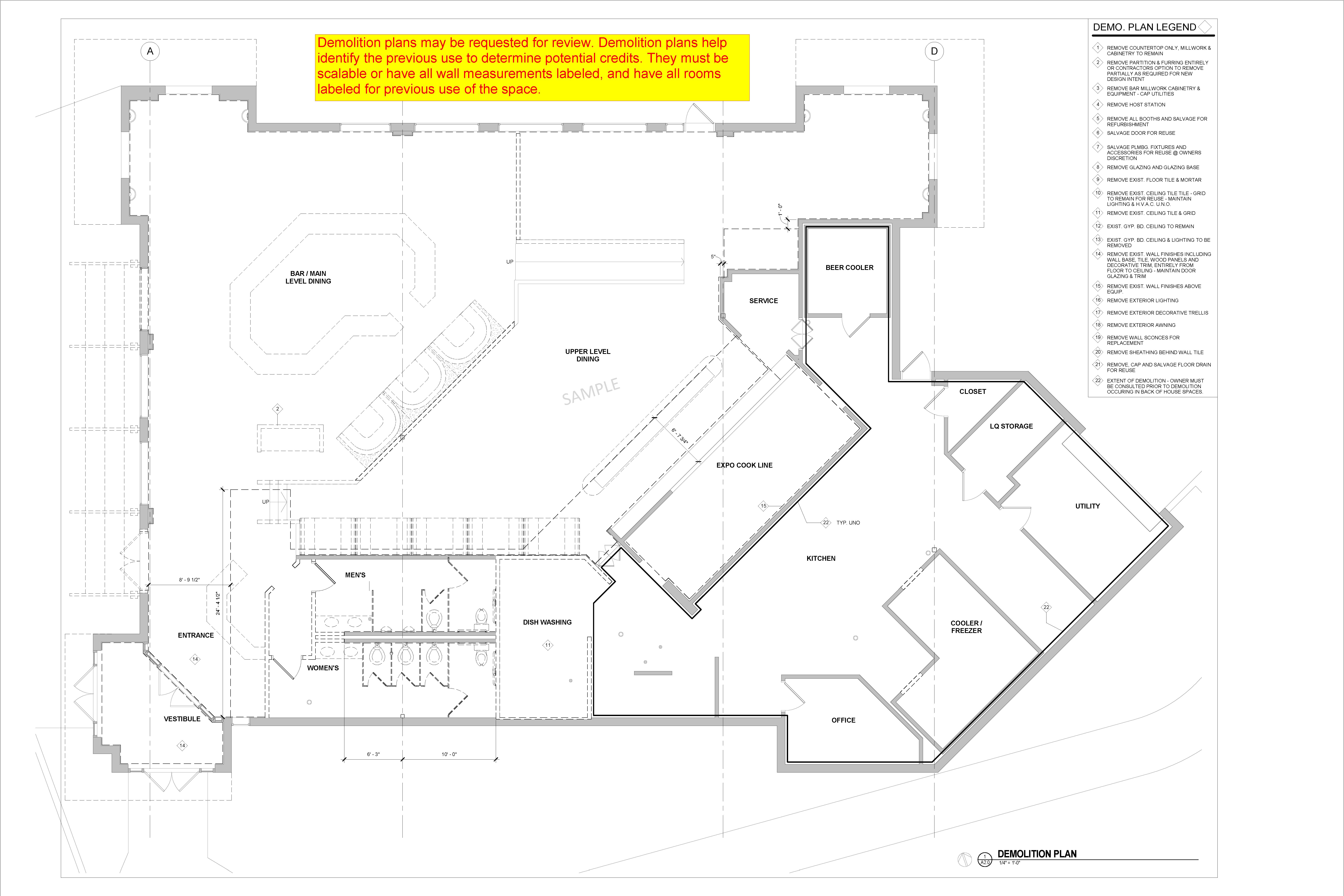
Demolition plans may be requested for review. Demolition plans help identify the previous use to determine potential credits. They must be scalable or have all wall measurements labeled, and have all rooms labeled for previous use of the space.

Demolition Plan Example (235 KB, PNG image)

Demolition Plan Example 2 (347 KB, PMG image)

We need a site plan to identify the location of the business. Site plans may either be a Google map image of the building circled or pinpointed, or an architect’s drawing of the site.

Site Plan Example – Google map image (1.6 MB, PNG image)

Site Plan Example 2 – Architect (201 KB, PNG image)

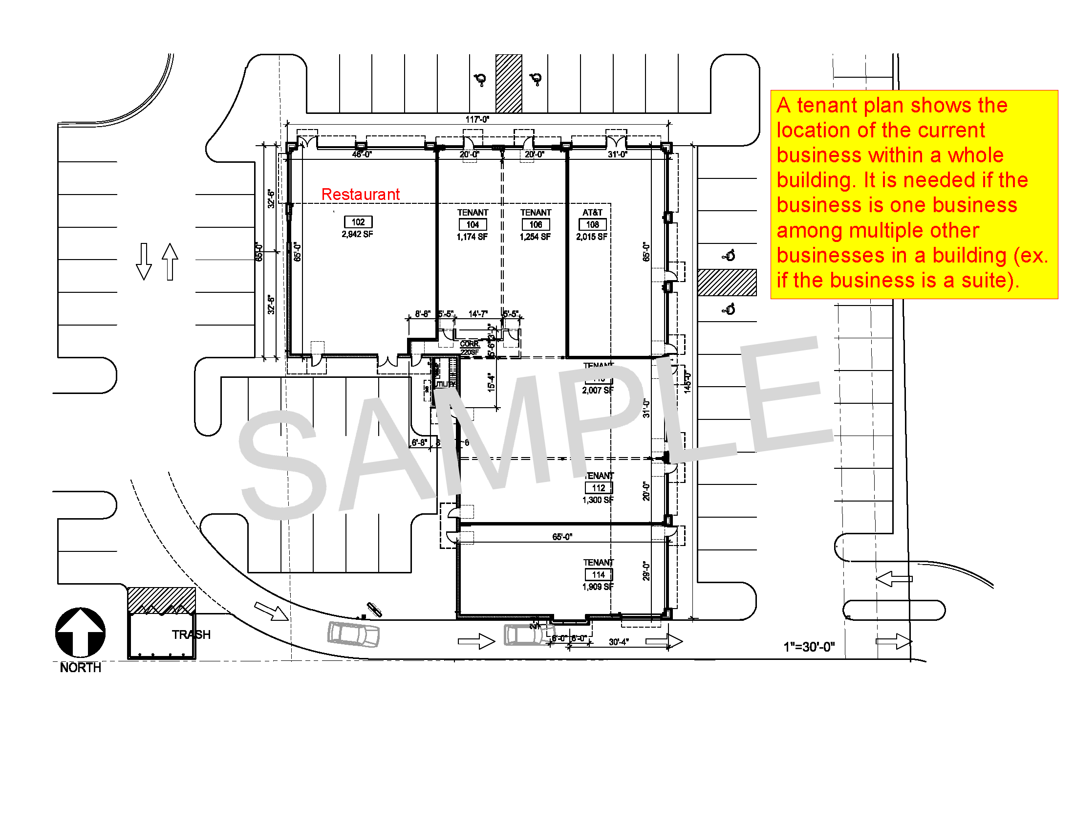
A tenant plan shows the location of the current business within a whole building. It is needed if the business is one business among multiple other businesses in a building (for example, if the business is a suite).

Tenant Plan Example (124 KB PNG image)

Tenant Plan Example 2 (60 KB PNG image)

Examples of how to fill out SAC’s most commonly required forms.

Determination forms

 

Transmittal-A Example (207 KB, PNG image)
All fields are required unless otherwise noted. Please note this is just an example form; you will enter your own information in each field.

Transmittal-B Example (208 KB, PNG image)
Fill out only what applies to your business. The business owner must sign and date the bottom. Please note this is just an example. You will enter your own information in each field.

Affidavit-A Example (177 KB, PNG image)
All fields are REQUIRED unless otherwise noted. Please note this is just an example. You will enter your own information in each field. If you have outdoor seating in your restaurant, you will need to include that on your floor plan as well. Don't forget to digitally sign or print form and sign.

Affidavit-B Example (169 KB, PNG image)
Used for all manufacturing businesses. Please note this is just an example. You will enter your own information in each field. Don't forget to digitally sign or print form, and sign.

Local government SAC reporting forms

 

SAC-A – SAC Activity Report (208 KB, PNG image)
This form is the summary of permit and payment activity for the reporting period. If the payment is not from your current permit activity, the dollar value is entered on the adjustment line (towards the end of the form on right side). See a copy of what can be submitted for your adjustment documentation (80 KB PNG image).

SAC-B – Residential Detail Report
This form is required to document all new residential activity that was issued for the reporting period. There are two forms:

SAC-C – Commercial Detail Report (196 KB, PNG image)
This form is required to document all nonresidential activity for the reporting period and change-of-use activity for nonresidential properties (including commercial, nonprofit, governmental and institutional). Other options:

  1. Submit a copy of the SAC Determination Letter (192 KB, PNG image), and a copy of the building permit (195 KB, PNG image)
  2. Submit a copy of the SAC determination letter with the address, building permit number, building permit issue date written on the letter (396 KB, PNG image)

SAC-D – Demolition Declaration Report (151 KB, PNG image)
This form is required to document all full building demolition activity. This form establishes a potential future credit for the site and is required to be submitted in order for demolition credit to be applied to a future new use. The demolition must be reported to MCES to be creditable. Monthly reporting is recommended.

The SAC-D form is not valid without all columns filled in and the following attachments:

  • Nonresidential demolitions must be accompanied by the SAC-C form or a copy of the MCES SAC Determination Letter
  • Industrial property demolitions must be accompanied by a copy of the SAC Determination Letter